Happy Condo Donmuang (แฮปปี้ คอนโด ดอนเมือง)
บริษัท อินฟินิท เรียลเอสเตท จำกัด เปิดตัวคอนโดใหม่
แฮปปี้ คอนโด ดอนเมือง (Happy Condo Donmuang) พร้อมคอมมูนิตี้มอลล์ Happy Avenue Donmuang โดยได้รับกระแสตอบรับเป็นอย่างดี และเพียงไม่กี่วันหลังจากเปิดตัวโครงการมียอดจองเกือบ 100% จากผู้ที่สนใจ ตัวโครงการอยู่บนถนนสรงประภา ใกล้รถไฟฟ้าสายสีแดงเข้ม และจุดขึ้น-ลงทางด่วนศรีสมาน ราคาเริ่มต้น
1.25 ล้านบาท
เจ้าของโครงการ
บริษัท อินฟินิท เรียลเอสเตท จำกัด
ทำเล และสถานที่ตั้งใกล้เคียง
ตัวโครงการสามารถเข้าออกได้ทั้งทางถนนวิภาวดี ถนนแจ้งวัฒนะ ถนนสรงประภา และทางด่วนศรีสมาน เป็นสุดยอดทำเลแห่งอนาคตพร้อมรถไฟฟ้าสายสีแดงเข้ม ธรรมศาสตร์-มหาชัย และแอร์พอร์ตลิงค์ ดอนเมือง-พญาไท-สุวรรณภูมิ (สถานีในอนาคต) มีสถานที่ใกล้เคียง เช่น
- โรบินสัน ดอนเมือง
- เซ็นทรัล แจ้งวัฒนะ
- บิ๊กซี แจ้งวัฒนะ
- ฟิวเจอร์พาร์ค รังสิต
- ไอที สแควร์
- โรงเรียนพระหฤทัยดอนเมือง
- วิทยาลัยเทคนิคดอนเมือง
- มหาวิทยาลัยรังสิต
- สำนักงานเขตดอนเมือง
- ศูนย์ราชการ

แผนที่โครงการ Happy Condo Donmuang
รูปแบบคอนโด และขนาดพื้นที่โครงการ
- คอนโดมิเนียมเป็นแบบ Low-Rise สูง 8 ชั้น จำนวน 2 อาคาร
- พื้นที่โครงการประมาณ 5-1-93.6 ไร่
- ห้องชุดพักอาศัยรวม 396 ยูนิต
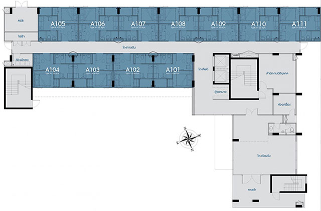
Floor Plan ชั้น 1
Floor Plan ชั้น 2
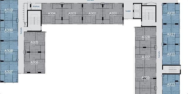
Floor Plan ชั้น 3 
Floor Plan ชั้น 4
Floor Plan ชั้น 5
Floor Plan ชั้น 6
Floor Plan ชั้น 7
Floor Plan ชั้น 8 แบบห้องและพื้นที่ใช้สอย
- แบบ 1 ห้องนอน Type A ขนาด 22 ตร.ม.
- แบบ 1 ห้องนอน Type B ขนาด 26 ตร.ม.
- แบบ 2 ห้องนอน Type C ขนาด 43 ตร.ม.
สาธารณูปโภคภายในโครงการ
- คอมมูนิตี้มอลล์ Happy Avenue Donmuang
- Sport Club โยคะ, โรงเรียนสอนมวยไทย
- สวนสวยรอบโครงการ
- ระบบรักษาความปลอดภัย 24 ชม.
อัพเดตความเคลื่อนไหวโครงการ