ดิ โอโซน เพชรเกษม 53 (The Ozone Petchkasem 53)
ดิ โอโซน เพชรเกษม 53 (The Ozone Petchkasem 53)
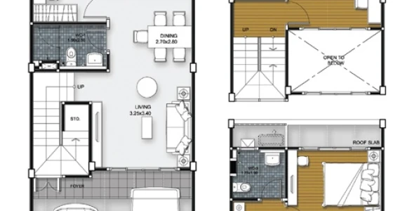
ทาวน์โฮม พร้อมคลับเฮ้าส์ เดินทางสะดวกใกล้รถไฟฟ้า MRT สายสีน้ำเงิน สถานีหลักสอง
ดิ โอโซน เพชรเกษม 53 (The Ozone Petchkasem 53)
ดูบ้านราคาใกล้เคียง
ดูที เอ เอส พร็อพเพอร์ตี้ ทุกโครงการ
ดูบ้านราคาใกล้เคียง
ดูที เอ เอส พร็อพเพอร์ตี้ ทุกโครงการ
N/A (ณ. วันที่ 18 ส.ค. 62)
โครงการนี้มีอายุมากกว่า 5 ปี โปรดสอบถามข้อมูลกับทางโครงการอีกครั้ง
โครงการนี้มีอายุมากกว่า 5 ปี โปรดสอบถามข้อมูลกับทางโครงการอีกครั้ง
19 ไร่ 90 ตร.ว.
210 หลัง
2 แบบ
ตั้งแต่ 18.56 ถึง 43.96 ตร.ว.
ตั้งแต่ 110 ถึง 160 ตร.ม.
โปรดสอบถามข้อมูลกับทางโครงการ
โปรดสอบถามข้อมูลกับทางโครงการ
ตั้งแต่ 3 ถึง 4 ห้อง
ตั้งแแต่ 1 ถึง 2 คัน
สวนสาธารณะ, คลับเฮาส์, สระว่ายน้ำ, ฟิตเนส
บางแค, ตลิ่งชัน, ทวีวัฒนา, ภาษีเจริญ
ซอยเพชรเกษม 53 แขวง หลักสอง เขตบางแค กรุงเทพมหานคร 10160
ใกล้รถไฟฟ้า, รถไฟฟ้าสายสีน้ำเงิน, สถานี(หัวลำโพง - บางแค)(ไม่ระบุ)
- ซีคอน บางแค
- เดอะมอลล์ บางแค
- ตลาดบางแค
- บิ๊กซี เอ็กซ์ตร้า เพชรเกษม 2
- มหาวิทยาลัยเอเชียอาคเนย์
- โรงเรียนอนุบาลเด่นหล้า
- โรงพยาบาลเกษมราษฎร์ บางแค
- โรงพยาบาลวิชัยเวช อินเตอร์เนชั่นแนล หนองแขม
2018
Tel. 063-6426301 - 3 หรือ 02-8013356
ภาพที่แสดงเป็นเพียงภาพประกอบ และข้อมูลอาจมีการเปลี่ยนแปลง
ดังนั้นโปรดสอบถามข้อมูลกับเจ้าของโครงการทุกครั้งก่อนตัดสินใจ
และราคาขายจริงอาจสูงกว่านี้ขึ้นอยู่กับ แบบบ้าน ทำเล และจำนวนบ้านที่เหลืออยู่
18 ส.ค. 62
สถานที่ใกล้เคียงโครงการ
อนุบาลเศรษฐราณี
0.65 กม.
รร.บางแค
0.75 กม.
สน.เพชรเกษม
0.88 กม.
รร.วัดม่วง
0.99 กม.
รพ.เกษมราษฏร์บางแค
1.13 กม.
รร.ปัญญาวรคุณ
1.14 กม.
ดิ เอ็กซ์เพรส กาญจนาภิเษก
1.28 กม.
รร.เพชรเกษม
1.60 กม.
เดอะมอลล์ สาขาบางแค
1.67 กม.
อนุบาลเปี่ยมปัญญา
1.74 กม.

