
เยี่ยมชม-รีวิว โครงการ "ลิปป์ ลาดพร้าว 20"
วันนี้ CheckRaka.com ขอพาทุกท่านมาเยี่ยมชมคอนโดเงียบสงบใจกลางเมือง ย่านลาดพร้าวตอนต้น เหมาะสำหรับคนทำงานยุคใหม่ เดินทางสะดวกทั้งรถยนต์และรถไฟฟ้าใต้ดิน พร้อมทั้งใกล้แหล่งช้อปปิ้ง รับประทานอาหาร เช่น เซ็นทรัลลาดพร้าว, โฮมโปร, บิ๊กซี, เมเจอร์รัชโยธิน, สวนจตุจักร และเอสพลานาดซินีเพล็กซ์ เรียกได้ว่าทำเลที่นี่โดดเด่นมากๆ เพื่อเป็นการไม่เสียเวลา เราไปชมโครงการกันเลยค่ะ
ข้อมูลโครงการเบื้องต้น
- เจ้าของและผู้พัฒนาโครงการ : บริษัท ลลิล พร็อพเพอร์ตี้ จำกัด (มหาชน)
- ที่ตั้งโครงการ : ซอยลาดพร้าว 20 ถนนลาดพร้าว เขตจตุจักร กรุงเทพมหานคร
- อาคารชุดพักอาศัยสูง 8 ชั้น จำนวน 1 อาคาร จำนวนห้องพักอาศัย 175 ยูนิต
- ขนาดที่ดินทั้งโครงการ: 1-0-78.3 ไร่
- ลิฟต์โดยสาร 2 ตัว
- ห้องชุดมี 5 แบบ ทั้งหมดเป็นแบบ 1 ห้องนอน
- ขนาดตั้งแต่ 26.25 - 43 ตร.ม.
- ที่จอดรถรวม 33% ของจำนวนยูนิต
- ราคาเริ่มต้น 1.98 ล้านบาท (ข้อมูล ณ 17 ต.ค. 57)
- โครงการสร้างเสร็จพร้อมอยู่
- วันที่เข้าเยี่ยมชม-รีวิวคอนโด 17 ต.ค. 57
เจ้าของและผู้พัฒนาโครงการ
บริษัท ลลิล พร็อพเพอร์ตี้ จำกัด (มหาชน) ก่อตั้งเมื่อวันที่ 8 กันยายน 2531 ด้วยทุนจดทะเบียนเริ่มแรก 20 ล้านบาท จนกระทั่งในปัจจุบัน บริษัทฯ มีทุนจดทะเบียนชำระแล้วทั้งสิ้น 825 ล้านบาท และได้เปลี่ยนสถานะเป็นบริษัทมหาชน เมื่อวันที่ 3 กันยายน 2545 บริษัทฯ ดำเนินธุรกิจบ้านจัดสรรภายใต้สโลแกน "บ้านที่ปลูกบนความตั้งใจที่ดี" โดยได้เปิดโครงการทาวน์เฮ้าส์เป็นโครงการแรก ภายใต้ชื่อโครงการ ลัลลี่ วิลล์ ในพื้นที่ 2 ทำเล คือ ถนนศรีนครินทร์ และธูปเตมีย์ จำนวนรวม 800 ยูนิต มีพื้นที่รวมจำนวน 88 ไร่ มูลค่าโครงการรวม 1,100 ล้านบาท โดยในปัจจุบันได้ปิดโครงการเรียบร้อยแล้ว ในช่วงวิกฤติของธุรกิจอสังหาริมทรัพย์ บริษัทฯ เป็นผู้ริเริ่มการทำการตลาดสำหรับบ้านจัดสรรใหม่ๆ หลายประการ เช่น โครงการ Friend get Friend และการนำระบบค้ำประกันเงินดาวน์ (Escrow Account) มาใช้เพื่อสร้างความมั่นใจให้กับลูกค้า เป็นต้น
ทำเลที่ตั้ง


ภาพแผนที่โครงการแจกแจงให้เห็นระยะใกล้-ไกลของโครงการกับสถานที่ หรือ Landmark รอบๆ โครงการที่น่าสนใจ
พิกัดตาม Google Map คือ 13.805117,100.570886

รถไฟฟ้า MRT สถานีลาดพร้าว (อยู่ห่างจากโครงการประมาณ 0.35 กม.)

อาคารจอดแล้วจร (อยู่ห่างจากโครงการประมาณ 0.90 กม.)

สวนลุมไนท์บาซาร์ รัชดาภิเษก (อยู่ห่างจากโครงการประมาณ 1.1 กม.)

บิ๊กซี เอ็กซ์ตร้า (อยู่ห่างจากโครงการประมาณ 0.50 กม.)

มหาวิทยาลัยเซนต์จอห์น (อยู่ห่างจากโครงการประมาณ 1.8 กม.)

เซ็นทรัลลาดพร้าว (อยู่ห่างจากโครงการประมาณ 1.5 กม.)

โรงเรียนหอวัง (อยู่ห่างจากโครงการประมาณ 2 กม.)
การเดินทางเข้า-ออกโครงการ
1. เดินทางด้วยรถยนต์ส่วนตัว
การเดินทางด้วยรถยนต์สามารถมาได้หลายเส้นทาง โดยมีเส้นทางหลักดังต่อไปนี้ค่ะ
เส้นทางที่ 1 - ขาเข้าโครงการจากรถไฟฟ้า MRT สถานีลาดพร้าว


เริ่มต้นจาก MRT สถานีลาดพร้าว โดยห่างจากแยกรัชดา-ลาดพร้าวแค่ 220 เมตร

การเดินทางค่อนข้างสะดวกมาก เพราะผ่าน MRT มา ก็เจอป้ายรถเมล์อยู่หน้าปากซอยโครงการเลยค่ะ

ขับเลยป้ายรถเมล์มานิดเดียวก็เจอป้ายลาดพร้าว 20 แล้วเตรียมเลี้ยวซ้ายได้เลยค่ะ

เข้ามาถึงกลางๆ ซอย สภาพแวดล้อมภายในซอยลาดพร้าว 20 จะค่อนข้างเงียบค่ะ

จากหน้าปากซอยแค่ประมาณ 350 เมตรเท่านั้น จะเห็นโครงการ ลิปป์ ลาดพร้าว 20 อยู่ทางซ้ายมือ
เส้นทางที่ 2 - ขาเข้าโครงการจากห้าแยกลาดพร้าว
-2.jpg)
เรามาชมภาพเส้นทางขาเข้าโครงการจากห้าแยกลาดพร้าวกันค่ะ

ลงจากสะพานข้ามห้าแยกลาดพร้าว ซ้ายมือเป็นยูเนี่ยน มอลล์ เลยยูเนี่ยนมอลล์ไปอีกหน่อยจะเป็น
MRT พหลโยธิน (ทางออกที่ 1)

ผ่านคอนโด High-Rise 2 ค่าย อยู่ตรงข้ามฝั่งถนนกันเลย

บิ๊กซี เอ็กซ์ตร้า+โฮมโปร ศูนย์รวมอาหาร ซูเปอร์มาร์เก็ต และเฟอร์นิเจอร์ เครื่องใช้ไฟฟ้า ราคาถูก

หลังจากที่กลับรถตรงซอยลาดพร้าว 15 (ฝั่งตรงข้าม) จากนั้นก็เตรียมเลี้ยวซ้ายเพื่อเข้าซอยลาดพร้าว 18 นะคะ

ภายในซอย 18 เต็มไปด้วยร้านค้าเริ่มจาก 7-Eleven ร้านขายยา และ CP Freshmart ค่ะ

มีแผงขายผลไม้ ร้านขายข้าวนึ่ง ร้านขายอาหาร เป็นตลาดย่อมๆ เลยค่ะ

จากปากซอยแค่ 100 เมตรกว่าๆ ขวามือก็จะเจอ Tesco Lotus express
ซ้ายมือเป็น 7-Eleven ให้บริการกันอย่างต่อเนื่อง

ขับตรงมาเรื่อยๆ เราจะเจอกับโครงการ LEVO ลาดพร้าว 18 ทั้ง 2 โครงการ ก่อนจะเตรียมเลี้ยวซ้าย

เลี้ยวซ้ายตามป้ายลาดพร้าว 18 แยก 1 ถัดไปอีกหน่อยเป็น Family Mart ถ้าช่วงค่ำๆ หน่อยซอยนี้อาจจะ
ค่อนข้างมืด มีร้านสะดวกซื้อตามหัวมุมถนนก็เดินง่ายขึ้นนะคะ

เลยหัวมุมถนนเข้ามาไม่ไกลก็จะเจอกับป้ายโครงการแล้วค่ะ

มองย้อนกลับไปจากหน้าโครงการก็จะเห็นวินมอเตอร์ไซค์อยู่ติดกับโครงการเลย เรียกใช้บริการสะดวกมากค่ะ
ส่วนถ้าจะเลี้ยวซ้ายหน้าโครงการก็สามารถทะลุไปซอยรัชดา 19 ได้ และถ้าเลี้ยวขวาก็คือซอยลาดพร้าว 18 ที่ผ่านมา
สภาพแวดล้อมใกล้เคียง

แผนที่แสดงบริเวณรอบๆ โครงการ
ภายในซอยลาดพร้าว 20 เป็นซอยขนาดเล็กมีอพาร์ตเมนต์ และคอนโดค่อนข้างมาก มีร้านอาหาร ร้านกาแฟ ร้านซักอบรีด และร้านส้มตำติดกับกำแพงของชุมสายโทรศัพท์ลาดพร้าว 1 และอยู่หน้าโครงการเลย แต่ความพลุกพล่านยังน้อยกว่าเมื่อเปรียบเทียบกับซอยลาดพร้ว 18 ถ้าจะเดินออกไปเพื่อหาซื้ออาหาร ผัก ผลไม้ ของใช้ต่างๆ ในซอย 18 อาจจะเหนื่อยเกินไป แนะนำให้โบกเรียกพี่วินดีกว่าค่ะ ออกจากประตูโครงการไป ก็เจอพี่วินอยู่หัวมุมถนนคอยบริการ เราลองเดินจากโครงการไปรถไฟฟ้า MRT สถานีลาดพร้าวกันดีกว่าค่ะ

ออกจากโครงการมาอย่างที่บอกจะเจอกับร้านส้มตำตรงหน้าประตูโครงการเลยค่ะ เห็นแล้วอุ่นใจไม่อดตายแน่นอน

ติดกับร้านส้มตำ อยู่เยื้องๆ โครงการเป็นอพาร์ตเมนต์สูง 5 ชั้น

ภายในซอยนี้เป็นถนนสองเลนแค่พอรถสวนกันเท่านั้นค่ะ หลบ เบียดกันได้ ตามปกติ
ที่เห็นก็จะมีร้านทำผม ร้านซักผ้า ร้านกาแฟ

บรรยากาศโดยรวมจะเป็นบ้านคน หรือหอพัก อพาร์ตเมนต์มากกว่า ถ้าไม่ชอบความอึกทึกซอยนี้ก็ตอบโจทย์เลยค่ะ

เดินมาเรื่อยๆ ถึงปากซอยแล้วค่ะ ใช้เวลาประมาณ 10 นาทีเหนื่อยนิดหน่อย จากนั้นเลี้ยวขวานะคะ

วิวถนนมุ่งหน้าห้าแยกลาดพร้าว สภาพการจราจร (ช่วงเวลาประมาณ 14.00-15.00 น.) ลื่นไหลดีทีเดียวค่ะ
หน้าปากซอยมีป้ายของโครงการใหญ่สะดุดตาให้เห็นชัดเจน

เดินมาไม่ไกลมาก เลาะตามฟุตบาทก่อนถึง MRT จะเจอกับเต้นท์รถมือสอง

ถึง MRT ลาดพร้าวแล้วค่ะ
เส้นทางที่ 1 - ขาออกโครงการ เข้าซอยลาดพร้าว 18 วนออกไปเจอแยกรัชดา-ลาดพร้าว
_1.jpg)
เส้นทางที่ 2 - ขาออกโครงการ ออกไปเจอป้ายรถเมลล์ (ปากซอยลาดพร้าว 20) และ MRT สถานีลาดพร้าว
.jpg)
2. การเดินทางด้วยรถไฟฟ้า และรถสาธารณะ
ถนนลาดพร้าวขึ้นชื่อเรื่องรถติดเป็นอันดับ 1 เพราะเป็นถนนที่กระจาย แตกย่อยไปตามถนนอื่นๆ ได้มากมาย เช่น ถนนรัชดาภิเษก ถนนวิภาวดีรังสิต ถนนพหลโยธิน อีกทั้งยังมีทั้งห้างสรรพสินค้า มหาวิทยาลัย โรงเรียน โรงพยาบาล เกาะเส้นนี้มากทีเดียวค่ะ แต่ก็มีข้อดีคือมีซอยเล็กๆ ที่สามารถวิ่งลัดไปยังถนนเส้นอื่นๆ ได้ค่อนข้างมาก ที่สำคัญมีรถไฟฟ้าคอยบริการเพื่อหนีปัญหารถติดได้เป็นอย่างดี ในส่วนของโครงการลิปป์ ลาดพร้าว 20 ดูจากแผนผังตามรูปด้านล่างได้เลยค่ะ

แผนที่บริเวณสถานี MRT ลาดพร้าว เลือกใช้ทางออกที่ 2 ซึ่งใกล้ตัวโครงการมากที่สุด
และสำหรับการเดินทางด้วยรถเมล์ มีให้เลือกหลายสายด้วยกัน เช่น
- สาย 8 ตลาดแฮปปี้แลนด์ - สะพานพุทธ
- สาย 27 มีนบุรี - อนุสาวรีย์ชัยสมรภูมิ
- สาย 44 แฮปปี้แลนด์ - ท่าเตียน
- สาย 92 คลองตัน - รพ.รามาธิบดี
- สาย 126 ม.รามคำแหง - บางเขน
- สาย 145 ปากน้ำ (อู่สายลวด) - หมอชิต2
- สาย 545 นนทบุรี - สำโรง

รูปแบบตึก และตัวโครงการโดยรวม
"โครงการลิปป์ ลาดพร้าว 20" เป็นคอนโด Low Rise สูง 8 ชั้น 1 อาคาร จำนวนรวม 175 ยูนิต ขนาดที่ดินรวม 1-0-78.3 ไร่ รูปร่างแปลงที่ดินของโครงการมีลักษณะเป็นสี่เหลี่ยมผืนผ้าหน้ากว้าง ทางเข้าอยู่ทางทิศตะวันตก พร้อมสิ่งอำนวยความสะดวกมากมาย อาทิ ห้องสมุด ฟิตเนส สระว่ายน้ำ และสวนดาดฟ้า สะดวกทุกการเดินทางโดยรถไฟฟ้าใต้ดินสถานีลาดพร้าว เพลิดเพลินกับแหล่ง shopping ต่างๆ บริเวณโดยรอบ เช่น Central ลาดพร้าว, Central พระราม9, Lotus, Big C สามารถเข้าออกได้ 3 เส้นทางหลัก ลาดพร้าว รัชดา วิภาวดี

ภาพแปลงที่ดินจาก Google Map แสดงให้เห็นแปลงที่ดินของทางโครงการ ซึ่งหันหน้าไปทางทิศตะวันตก จะเจอกับชุมสายโทรศัพท์ลาดพร้าว จะมีเสาส่งสัญญาณขนาดใหญ่ตั้งอยู่ ส่วนทิศตะวันออกจะค่อนข้างโล่งค่ะ เป็นบ้าน 2 ชั้นซะส่วนใหญ่ ส่วนทางทิศเหนือติดกับอพาร์ตเมนต์สูง 5 ชั้น ทิศใต้ก็จะมีคอนโดมิเนียมแกรนด์ดานาตั้งอยู่ค่ะ

โครงการมีเพียง 1 อาคาร ตัวอาคารจะหันหน้ามาทางทิศตะวันตกและส่วนกลางจะอยู่ที่ชั้น 8 ทั้งหมดค่ะ จะมีห้องสมุด
และมุมพักผ่อนเล็กๆ และมีพื้นที่สีเขียวเป็นสวนดาดฟ้าให้ได้นั่งชมวิว รวมถึงฟิตเนส และสระว่ายน้ำแบบ infinity edge

ทางเข้าออกของตัวอาคารนี้มีทางเดียวค่ะ แต่ว่าจะมีแยกตรงกำแพงด้านนอกให้เพื่อความสะดวกคือ
ทางเข้าสำหรับคนที่ไม่ได้ใช้รถถ้ามาจากปากซอยลาดพร้าว 20 ก็เข้าประตูมาได้เลย
ส่วนอีกทางคือทางเข้าสำหรับรถยนต์ค่ะ จอดรถเสร็จแล้วก็เดินลัดมาทางเข้าตัวอาคารได้เหมือนกัน

ตรงส่วนทางเข้าของรถยนต์นี้จะมีเจ้าหน้าที่รักษาความปลอดภัยตลอด 24 ชั่วโมง และมีไม้กั้นกระดก
รวมถึง Access Card ค่ะ ส่วนที่จอดรถนั้นจะจอดที่ใต้อาคาร จอดได้เพียง 58 คัน (ไม่รวมซ้อนคัน)

เข้ามาภายในอาคารแล้วจะเจอตู้รับจดหมายและชุดเก้าอี้สำหรับนั่งรอค่ะ

ลิฟต์ของโครงการมีทั้งหมด 2 ตัว

บริเวณทางเดินภายในอาคาร
Floor plan ชั้นต่างๆ ของโครงการลิปป์ ลาดพร้าว 20

ชั้นที่ 1 จะเป็นที่จอดรถค่ะ จอดได้ทั้งหมด 58 คัน ไม่รวมซ้อนคัน
พื้นที่จอดรถจะรวมถึงด้านหน้าตรงทางเข้าด้วยค่ะ ตรงนั้นจะจอดได้ 6 คัน

ชั้นที่ 2-7 จะเป็นยูนิตพักอาศัยทั้งหมดค่ะ หนึ่งชั้นจะมีทั้งหมด 26 ห้อง
ลักษณะอาคารจะเป็นหน้ากว้าง ยูนิตส่วนใหญ่จะมีระเบียงหันไปทางทิศตะวันออกและทิศตะวันตกค่ะ

ชั้นที่ 8 จะเป็นยูนิตที่พักอาศัยและส่วนกลางค่ะ
ส่วนกลางก็จะมีสระว่ายน้ำ ห้องสมุด ฟิตเนส และสวนสำหรับนั่งพักผ่อน 2 จุดค่ะ

สำหรับสีเขียวๆ ที่เห็นในชั้นดาดฟ้านี้จะเป็นสวนดาดฟ้าค่ะขึ้นบันไดจากชั้น 8 ตรงสระว่ายน้ำไปนิดหน่อย
ส่องกล้องมองรอบทิศโครงการลิปป์ ลาดพร้าว 20

แปลงที่ดินของโครงการอยู่ในซอยลาดพร้าว 20 ค่ะ ด้านหน้าโครงการอยู่ทางทิศตะวันตก

ตรงนี้เรายืนอยู่ตรงเข้า-ออกรถยนต์ของโครงการค่ะ โดยหันหน้าไปทางทิศตะวันตกมองไปทางซ้ายมือ
เราจะเห็นเสาส่งสัญญาณขนาดใหญ่ของ TOT ค่ะ เสานี้ก็จะสูงเกิน 8 ชั้น ห้
องใครอยู่เยื้องๆไปทางทางทิศตะวันตกเฉียงใต้นี้ก็จะมีวิวเป็นเสานี้ค่ะ

แต่ถ้าหันหน้าไปทางทิศตะวันตกมองไปทางขวามือก็จะเป็นอพาร์ตเมนต์สูง 6 ชั้น รวมดาดฟ้าก็เป็น 7 ชั้นค่ะ
ห้องของโครงการฝั่งทิศตะวันตกเฉียงเหนือก็จะได้วิวนี้ไป

เรามาดูทางทิศเหนือกันบ้างค่ะ ที่อยู่ชิดติดกันเลยก็คือลาดพร้าว 20 อพาร์ตเมนต์ สูง 5 ชั้น ถ้านับดาดฟ้าเข้าไปด้วยก็กลายเป็น 6 ชั้นค่ะ ผู้ที่อยู่อาศัยชั้นที่ 7-8 ของโครงการก็จะได้วิวที่โล่งไม่มีอาคารบังในระยะประชิด

ภาพนี้เป็นภาพตัวอาคารลาดพร้าว 20 อพาร์ตเมนต์ อีกฝั่งหนึ่งค่ะ

ส่วนทางทิศตะวันออกเป็นบ้านพักอาศัยสูง 2-4 ชั้น เป็นส่วนใหญ่ค่ะ ค่อนข้างโล่ง
แต่จะมีอาคารสูง 6 ชั้นอยู่ 1 อาคาร ที่เราเห็นทางซ้ายมือของรูปนี้ค่ะ

ฝั่งทิศใต้จะเป็นแกรนด์ดานา คอนโดมิเนียมสูง 12 ชั้นค่ะ จะบังในฝั่งนี้มิดเลย
Lay out ห้องแบบต่างๆ ของโครงการลิปป์ ลาดพร้าว 20
- ห้องแบบ A 1 ห้องนอน 1 ห้องน้ำ ขนาด 26.25 ตร.ม. (คลิกเพื่อชมแปลนห้องขนาดใหญ่)
- ห้องแบบ B 1 ห้องนอน 1 ห้องน้ำ ขนาด 32.00 ตร.ม. (คลิกเพื่อชมแปลนห้องขนาดใหญ่)
- ห้องแบบ C 1 ห้องนอน 1 ห้องน้ำ ขนาด 34.50 ตร.ม. (คลิกเพื่อชมแปลนห้องขนาดใหญ่)
- ห้องแบบ D 1 ห้องนอน 1 ห้องน้ำ ขนาด 34.50 ตร.ม. (คลิกเพื่อชมแปลนห้องขนาดใหญ่)
- ห้องแบบ E 1 ห้องนอน 1 ห้องน้ำ ขนาด 43.00 ตร.ม. (คลิกเพื่อชมแปลนห้องขนาดใหญ่)
ส่วนกลางและสิ่งอำนวยความสะดวก
- สระว่ายน้ำ Infinity Edge ขนาด 5x12 เมตร ลึก 1.50 เมตร
- ห้องออกกำลังกาย Fit & Firm Room
- ระบบรักษาความปลอดภัยเข้า-ออก Access Card
- เจ้าหน้าที่รักษาความปลอดภัย 24 ชั่วโมง
- สวนดาดฟ้า (Roof Garden)
- ห้องอเนกประสงค์
- ค่าส่วนกลาง 35 บาท/ตร.ม.

มีเจ้าหน้าที่รักษาความปลอดภัยตลอด 24 ชั่วโมงค่ะ

ห้องฟิตเนสพร้อมอุปกรณ์ครบครัน

สระว่ายน้ำระบบเกลือ กว้าง 5x12 เมตร ลึก 1.50 เมตรค่ะ มุมนี้เป็นทิศตะวันตกเฉียงใต้
ซ้ายมือเราจะเห็นแกรนด์ดานา คอนโดมิเนียม ถ้าเราว่ายน้ำอยู่คนที่อยู่คอนโดชั้น 8 ขึ้นไปนี้ก็เห็นเราเต็มๆ เลยค่ะ
ส่วนขวามือของภาพจะเป็นเสาส่งสัญญาณ TOT

บรรยากาศสวนดาดฟ้าค่ะ หญ้าจะเป็นหญ้าเทียมมีต้นไม้ใหญ่ อนาคตก็จะสามารถเป็นร่มเงาได้
ส่วนที่นั่งน้อยไปนิดอาจจะไม่เพียงพอต่อความต้องการค่ะ

ห้องนี้กำลังปรับแต่งให้เป็นห้องสมุดค่ะ ส่วนพื้นที่ด้านนอกจะเป็นมุมพักผ่อนเล็กๆ

ด้านล่างของโครงการบริเวณจอดรถก็มีเป็นสวนหย่อมเล็กๆ ให้ค่ะ
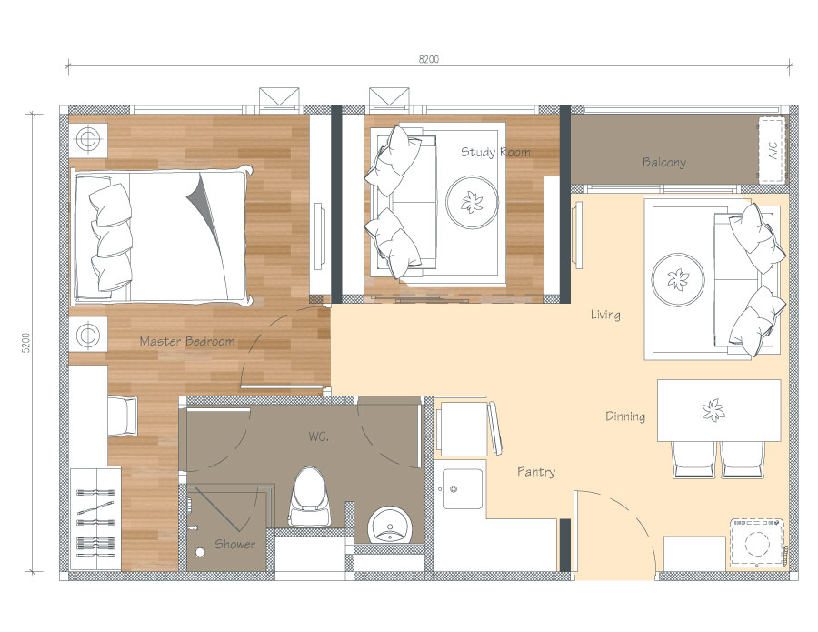
ภาพห้องตัวอย่างและ Lay out
แบบห้องโครงการนี้ มี 5 แบบ ทั้งหมดเป็นแบบ 1 ห้องนอน 1 ห้องน้ำ ดังนี้ แบบ A ขนาด 26.25 ตร.ม., แบบ B ขนาด 32.00 ตร.ม., แบบ C ขนาด 34.50 ตร.ม., แบบ D ขนาด 34.50 ตร.ม., แบบ E ขนาด 43.00 ตร.ม. แต่ตอนนี้ห้องแบบ E ขายหมดแล้วค่ะ สำหรับวันนี้ทีมงาน CheckRaka.com ขอพาทุกท่านไปชมห้องแบบ A กันค่ะ เป็นแบบที่เล็กที่สุดของโครงการจะเป็นอย่างไรนั้นไปชมกันเลยค่ะ

Floor Plan ห้องแบบ A ขนาด 26.25 ตร.ม.

มาเริ่มกันที่ประตูทางเข้ากันก่อนเลยค่ะ ประตูทางเข้าวัสดุเป็นบานสำเร็จรูป HDF หรือเทียบเท่าค่ะ
ลูกบิดเป็นสแตนเลสด้ามจับแบบโยก

มองลงมาที่พื้น เข้ามาภายในห้องจะเป็นแกรนิตโต้ 60x60 ค่ะ

ห้องนี้จะถูกจัดวางโดยให้ส่วนนั่งเล่นอยู่หน้าสุดค่ะ ถัดไปก็จะเป็น Pantry ที่เชื่อมออกไปยังระเบียง
โดยแต่ละส่วนนั้นจะมีประตูกระจกแบบบานเลื่อนกั้นเป็นส่วนๆ ส่วนห้องนอนก็จะอยู่ลึกเข้าไป
ด้านในอย่างที่เห็นเลยค่ะ และห้องน้ำจะอยู่ในห้องนอน

มุมนั่งเล่นและรับแขกค่ะ รวมถึงส่วนรับประทานอาหาร เรียกได้ว่าพื้นที่ตรงนี้อเนกประสงค์พอสมควร
ด้วยพื้นที่ที่จำกัดเลยทำให้หลายกิจกรรมต้องมารวมในห้องนี้ค่ะ

อีกมุมหนึ่งของห้องนั่งเล่น จากพื้นถึงเพดานสูง 2.40 เมตรค่ะ

ถัดมาเป็นส่วนของ Pantry ที่ทางโครงการได้ built in มาให้

หันหลังกลับมาเราก็จะเจอตู้เย็นที่โครงการได้นำมาตั้งโชว์ไว้ค่ะ

พอออกมาที่ระเบียง เป็นที่วางเครื่องซักผ้า
แต่ถ้าใครกลัวเปียกก็อาจจะทำฉากกั้นปิดไว้ก็ได้ค่ะ เพื่อรักษาเครื่องซักผ้าให้ใช้ได้นานๆ

เข้ามาในห้องนอนบ้าง ห้องนอนวางเตียง 6 ฟุตแบบเต็มพื้นที่เลยค่ะ ทีวีอาจจะต้องใช้แบบติดผนังเอานะคะ

ห้องน้ำของที่นี่จะมี 1 ห้อง และจะอยู่ในห้องนอน ถ้าแขกมาก็ต้องผ่านห้องนอนเข้ามาค่ะ ตรงนี้อาจจะไม่สะดวกเท่าไรนัก

พื้นห้องนอนเป็นพื้นลามิเนต และห้องน้ำเป็นกระเบื้อง 30x30 ซม.ไม่มีธรณีกั้นให้ ตรงนี้ถ้าโดนน้ำมากๆ เข้าอาจจะบวมได้ค่ะ

ขนาดของห้องน้ำเล็ก ค่อนข้างอึดอัดเล็กน้อย จัดวางพื้นที่ห้องน้ำ
โดยเปิดประตูเข้าไปตรงหน้าจะเป็นฝักบัว ขวามือจะเป็นโถสุขภัณฑ์ ซ้ายมือเป็นอ่างล้างหน้าค่ะ

สุขภัณฑ์ใช้ของ Cotto มีธรณีกั้นส่วนเปียกและส่วนแห้งให้ค่ะ ติดม่านพลาสติกป้องกันน้ำกระเด็นได้ค่ะ แต่ถ้าเป็นฉากใสหรือกระจกอาจจะไม่สะดวกเพราะห้องน้ำแคบมาก อาจจะไม่สะดวกที่จะนำเอาวัสดุอะไรไปกั้นหรือปิดแบบตายตัว
ราคาและค่าใช้จ่ายที่เกี่ยวข้องโดยประมาณ (ณ วันที่ 17 ต.ค. 57)
ราคาเริ่มต้น 1.98 ล้านบาท
โครงการขายห้องแบบ Fully fitted มี Pantry และแอร์ที่ห้องนอน 1 ตัว ปัจจุบันเหลือห้องที่เปิดให้จองเพียง 13 ห้องเท่านั้นค่ะ รายละเอียดห้องมีดังนี้
1) ห้องแบบ A เงินจอง 10,000 บาท ทำสัญญา 30,000 บาท
- ขนาด 26.35 ตร.ม. ชั้น 3 ราคา 1.98 ล้านบาท
- ขนาด 26.35 ตร.ม. ชั้น 3 ราคา 1.98 ล้านบาท
- ขนาด 26.20 ตร.ม. ชั้น 5 ราคา 2.06 ล้านบาท
- ขนาด 26.35 ตร.ม. ชั้น 5 ราคา 2.06 ล้านบาท
- ขนาด 26.25 ตร.ม. ชั้น 5 ราคา 2.06 ล้านบาท
- ขนาด 35.41 ตร.ม. ชั้น 6 ราคา 2.79 ล้านบาท
2) ห้องแบบ B เงินจอง 10,000 บาท ทำสัญญา 30,000 บาท
- ขนาด 31.64 ตร.ม. ชั้น 6 ราคา 2.56 ล้านบาท
3) ห้องแบบ C เงินจอง 10,000 บาท ทำสัญญา 30,000 บาท
- ขนาด 35.41 ตร.ม. ชั้น 3 ราคา 2.69 ล้านบาท
4) ห้องแบบ D เงินจอง 10,000 บาท ทำสัญญา 30,000 บาท
- ขนาด 26.25 ตร.ม. ชั้น 6 ราคา 2.60 ล้านบาท
- ขนาด 34.40 ตร.ม. ชั้น 2 ราคา 2.56 ล้านบาท
- ขนาด 34.78 ตร.ม. ชั้น 4 ราคา 2.67 ล้านบาท
- ขนาด 34.40 ตร.ม. ชั้น 4 ราคา 2.63 ล้านบาท
- ขนาด 34.40 ตร.ม. ชั้น 5 ราคา 2.67 ล้านบาท
ภาพรวมโดยสรุปของโครงการ
การเดินทางเข้าออกโครงการ - ตัวโครงการตั้งอยู่ที่ซอยลาดพร้าว 20 หากเดินทางโดยรถยนต์จะเข้าตัวโครงการได้ 3 เส้นทางค่ะ เส้นทางแรกก็จะมาจากทางถนนพหลโยธินเข้ามาถนนลาดพร้าวและกลับรถบริเวณเยื้องๆ กับซอยลาดพร้าว 18 และเลี้ยวซ้ายเข้าซอยเกือบจะทันที เพราะจุดกลับรถกับซอย 18 อยู่ใกล้กันค่ะ เส้นทางที่ 2 ก็จะเข้าทางถนนรัชดาภิเษก ซอยรัชดาภิเษก 19 และลัดมาที่ซอยลาดพร้าว 20 ได้เลย และเส้นทางสุดท้ายคือมาจากถนนวิภาวดีรังสิต เข้าซอยวิภาวดีรังสิต 20 จะลัดเข้าสู่ซอยลาดพร้าว 18 ได้ค่ะ ส่วนการเดินทางโดยรถไฟฟ้าใต้ดิน สถานีที่ใกล้ที่สุดก็คือสถานีลาดพร้าว โดยห่างจากโครงการประมาณ 350 เมตร สามารถตรงเข้าซอยลาดพร้าว 20 ได้เลย หรือใครที่จะนั่งวินมอเตอร์ไซค์บริเวณปากซอยลาดพร้าว 22 มีให้บริการค่ะอยู่ไม่ไกลจากตัวสถานีลาดพร้าว ถือว่าการเดินทางนั้นสะดวกทั้งรถยนต์และรถสาธารณะเลยค่ะ
ทำเลรอบโครงการ - ในส่วนของโลเคชั่นในซอยลาดพร้าว 20 ซอยค่อนข้างแคบค่ะ เป็นถนน 2 เลน รถสวนกันไปและกลับร้านอาหารก็จะมีอยู่ตรงข้ามโครงการค่ะ มีร้านส้มตำและอาหารอีสานขายอยู่ บริเวณใกล้ๆ กันก็จะมีร้านกาแฟ ร้านซักอบรีดอยู่บริเวณใต้อพาร์ตเมนต์ในซอย แต่ถ้าหากจะให้ครึกครื้น ก็เดินไปที่ซอย 18 ระหว่างเดินไปซอย 18 ก็จะมี Family Mart และตั้งแต่ปากซอยจนถึงกลางซอย 18 อาหารการกิน ร้านค้า ร้านผลไม้เรียกได้ว่าไม่ขาดแคลนเลยค่ะ ส่วนถ้าใครอยากไปธนาคารซื้อของเยอะหน่อยก็ไปที่บิ๊กซี เอ็กซ์ตร้า ลาดพร้าวได้
อาคารและตัวโครงการโดยรวม - ตัวอาคารเป็นอาคาร Low Rise 8 ชั้น ตัวอาคารเลือกใช้สีเทาเข้มช่วยให้ความรู้สึกโมเดิร์นและดูไม่เลอะเทอะไม่เก่าง่าย ส่วนพื้นที่ส่วนกลางถือว่าจัดมาได้ดีในระดับหนึ่งค่ะ ด้วยพื้นที่ที่จำกัดจึงทำให้มีสวนน้อยไปหน่อย คือมีสวนหย่อมเล็กๆ ที่ด้านล่างโครงการใกล้กับที่จอดรถ และมีสวนดาดฟ้าที่ชั้น 8 ตรงนี้จะมีต้นไม้เล็กน้อยและเป็นหญ้าเทียมค่ะ ความรู้สึกอาจจะไม่สดชื่นเท่าของจริง และมีห้องฟิตเนสพร้อมอุปกรณ์ รวมถึงสระว่ายน้ำเป็นระบบเกลือขนาดไม่ใหญ่มาก และที่ตรงส่วนกลางนี้เป็นทิศใต้จะอยู่ตรงกับแกรนด์ดานา คอนโดมิเนียม ดังนั้นถ้าเราว่ายน้ำหรือนั่งเล่นตรงนี้คนที่ชอบความเป็นส่วนตัวอาจจะไม่ชอบ เพราะคนในแกรนด์ดานาตั้งแต่ชั้น 8-12 จะมองเห็นเราเต็มๆ ส่วนพื้นที่จอดรถรวม จอดได้ 58 คัน ยูนิตทั้งหมดมี 175 ยูนิต คิดเป็น 33 เปอร์เซ็นต์เท่านั้น แต่ยังไม่นับซ้อนคันนะคะ แต่ถ้านับก็คงได้อีกไม่มาก ดังนั้นอาจจะมีปัญหาเรื่องที่จอดรถไม่เพียงพอต่อความต้องการ และอัตราส่วนการใช้ลิฟต์โดยสารอยู่ที่ 87.5 : 1 ถือว่าดีมาก ไม่อึดอัดเลยค่ะ
รูปแบบห้องและวัสดุ - การจัดวางพื้นที่การใช้งานต่างๆ ของห้องแบบ 1 ห้องนอน ขนาด 26.25 ตร.ม. นั้นถือว่ายังไม่ลงตัวในส่วนของห้องน้ำและ Pantry ค่ะ เรามาดูที่ห้องน้ำกันก่อน ห้องน้ำที่ให้มานั้นค่อนข้างเล็กทีเดียวค่ะ การจัดวางสุขภัณฑ์ต่างๆ ทำให้ห้องน้ำดูแคบเข้าไปอีก เมื่อเปิดประตูห้องน้ำเข้าไปประตูก็ชนกับโถสุขภัณฑ์ โซนเปียกสำหรับอาบน้ำฝักบัวที่ทำให้ไว้ก็แคบเหมือนกัน เมื่อเป็นเช่นนี้ถ้าเราไม่หาม่านมาบังก็จะเปียกไปทั่วห้องน้ำเลยล่ะค่ะ มาถึงส่วน Pantry บ้างตรงนี้โครงการจัด built in มาให้ และจะมีประตูกระจกบานเลื่อนกั้นไว้ระหว่างห้องนั่งเล่นและระเบียงค่ะ เผื่อว่าเวลาทำอาหารจะส่งกลิ่นรบกวน แต่ว่าพื้นที่ตรง Pantry นี้เล็กไปสักนิดจะทำอาหารจริงจังอาจจะลำบากหน่อยค่ะ ในความเป็นจริงคงทำได้แค่อุ่นอาหารจากไมโครเวฟ ดังนั้นถ้าเอาประตูกั้นส่วนนี้ออกไปก็จะเพิ่มพื้นที่ห้องนั่งเล่น จะทำให้ดูกว้างมากขึ้นค่ะ ตัวอย่างวัสดุที่ใช้ในโครงการ เช่น สุขภัณฑ์ Cotto, ประตูบานสำเร็จรูป High Density Fiberboard (HDF) หรือเทียบเท่า, กรอบประตูบานเลื่อนและหน้าต่างวัสดุเป็นอลูมิเนียมสีดำ และกระจกติดภายนอกเป็นกระจกสีเขียวตัดแสงส่วนภายในเป็นกระจกใสธรรมดาค่ะ
ราคา - ปัจจุบัน ณ วันที่ 17 ตุลาคม 2557 ราคาเริ่มต้นอยู่ที่ 1.98 ล้านบาท ขายห้องแบบ Fully Fitted ที่มีของแถมเป็นเครื่องปรับอากาศ 1 ตัว และ pantry built in ใครที่ทำงานแถวๆ ลาดพร้าว และต้องฝ่าฝันกับปัญหาการจราจรติดขัด การเลือกที่จะอยู่ใกล้ๆ กันกับที่ทำงานก็เป็นทางเลือกที่ดีและคุ้มค่าค่ะ อีกทั้งโครงการก็อยู่ไม่ไกลจากรถไฟฟ้าใต้ดิน และอยู่ใกล้ห้างสรรพสินค้า แหล่งช้อปปิ้ง เรียกได้ว่าเป็นคอนโดกลางเมืองที่เงียบสงบที่หนึ่ง ดังนั้นถ้าให้เทียบถึงความคุ้มค่าของราคาก็คุ้มตรงทำเลที่ตั้ง ส่วนห้องที่ขายนั้นถ้าไม่ได้หวังเรื่องวัสดุที่หรูหราหรือลูกเล่นอะไรมาก ราคานี้ก็ถือว่าพอรับได้ไม่สูงมากค่ะ
สถานะปัจจุบันของโครงการ (ณ วันที่ 17 ต.ค. 57)
โครงการลิปป์ ลาดพร้าว 20 เป็นโครงการสร้างเสร็จพร้อมอยู่ค่ะ เมื่อวันที่ 17 ตุลาคม 2557 ที่ทีมงานเข้าไปเยี่ยมชม ทางโครงการกำลังปรับปรุงพื้นที่จอดรถ แต่ก็พร้อมอยู่ประมาณ 95% แล้ว ปัจจุบันขายไปได้ประมาณ 70% ลูกค้าให้ความสนใจเยอะพอสมควร ส่วนลูกค้าที่สนใจโครงการสามารถเข้าเยี่ยมชมห้องตัวอย่างและเลือกจองยูนิตพักอาศัยกันได้ค่ะ
ดูรายละเอียดโครงการเพิ่มเติม www.lalinproperty.com/lib-ladprao.html
แท็กที่เกี่ยวข้อง
เขียนโดย
เช็คราคา.คอม
Condo Guru
พูดคุยกับกูรูได้ที่

